TRE APPARTAMENTI NELLA STESSA PALAZZINA IN ANCONA

In vendita
Stabile / Palazzo
Ancona
193.000 €
Descrizione
Agenzia immobiliare QualityCASA propone in vendita in blocco tre appartamenti di nuova costruzione composti da:
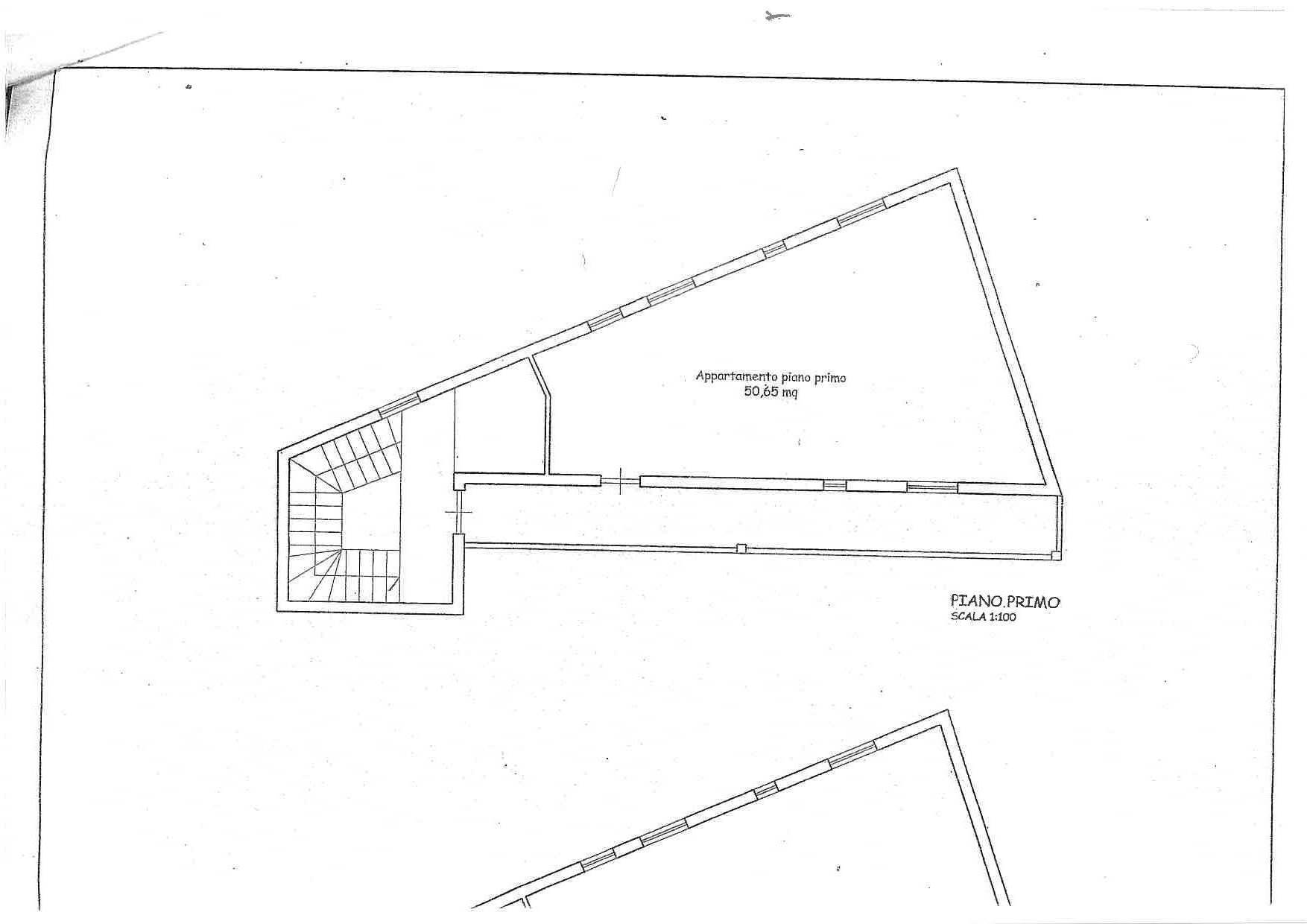
- Appartamento piano primo ancora da suddividere internamente, con balcone e posto auto esterno;
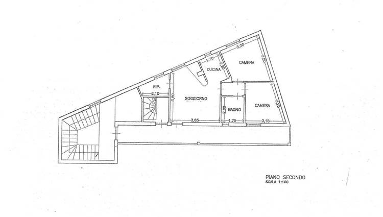
- Appartamento piano secondo: ingresso, soggiorno con camino, cucinino, camera, cameretta, bagno con doccia, ripostiglio, balcone e posto auto esterno;
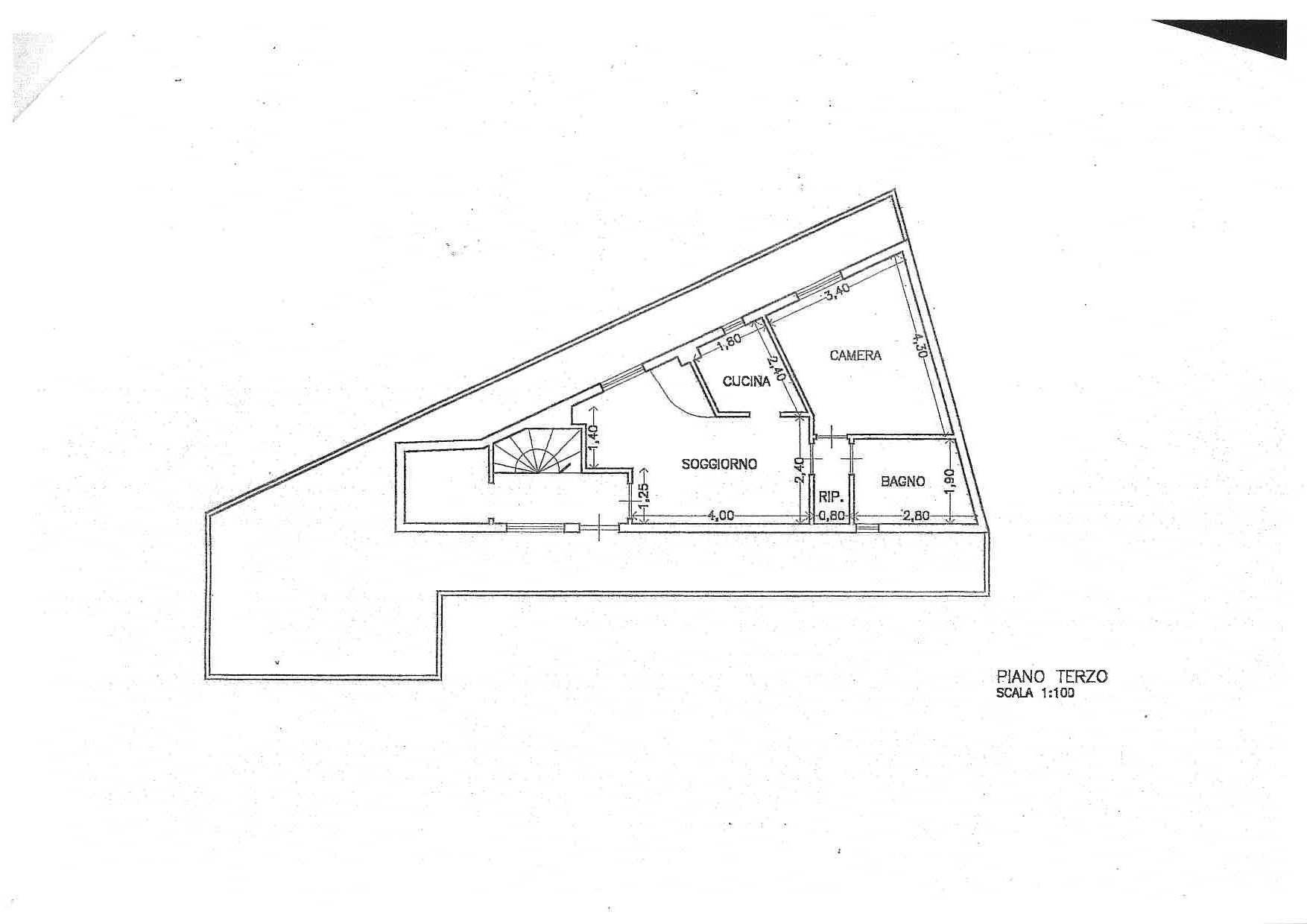
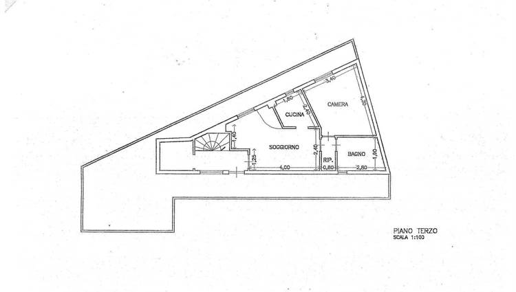
- Appartamento piano terzo: ingresso, soggiorno con camino, cucinotto, camera, bagno, ripostiglio, balcone perimetrale, terrazzo e posto auto esterno.
Porte a scrigno, finestre in legno e alluminio con vetro doppio, riscaldamento autonomo, vano per ascensore, corte condominiale con cancello.
Impianti nuovi tranne per il primo piano che è grezzo.
Rif.AN40 - €193.000
Referente Roberto BEDINA 3773433426

* Non è l'immobile che stai cercando?
Consulta il nostro sito, seguici sui social network, e contattaci, fornendo una richiesta dettagliata dell'immobile oggetto dei tuoi desideri, lasciando un recapito telefonico e una mail. Sarai tempestivamente informato.
QualityCASA, da 32 anni "La Qualità al Servizio del Cliente"
Caratteristiche principali
Codice:
AN40
Città:
Ancona
Categoria:
Stabile / Palazzo
Locali:
5
Camere:
4
Bagni:
3
Mq:
230
Posti auto:
3
Mq Giardino:
250
Balconi:
3
Terrazzi:
1
Piano:
Terra
Anno:
1998
Classe energetica:
G
Stato Immobile:
Nuovo
Grado:
Medio
Lati Liberi:
4
Giardino:
Privato
Riscaldamento:
Autonomo
Tipo Riscaldam.:
Caldaia
Tipo Impianto:
Radiatori
Fonte Energetica:
Metano
Acqua Calda:
Autonoma
Raffrescamento:
No
Infissi:
Legno Doppio Vetro
Serramenti:
Nuovo
Persiana:
Tapparella PVC
Pavim. Giorno:
Gres Porcellanato
Pavim. Notte:
Gres Porcellanato
Pavim. Cucina:
Gres Porcellanato
Pavim. Bagno:
Gres Porcellanato
Accesso Disabili:
Nessuna Barriera
Accesso interno disabili:
Pieno accesso
Appartamenti:
Tre
Destinato a residenti:
Si
Accessori
Ascensore
Camino
Cancello Elettrico
Doppi Vetri
Porta Blindata
Ripostiglio
Agenti venditori
Roberto Bedina
Roberto Bedina
Cookie preference